Baksidan

Åkerbärsvägen 2

Centralt, Jädraås

Trivsam och välplanerad planlösning i denna1 ½ plansvilla på hörntomt i centrala Jädraås. Välskött interiör med 3 sovrum samt ett rymligt badrum med både badkar och duschhörna. Nibe frånluftsvärmepump från 2018 ger effektiv värme till låg kostnad. Trädgårdstomt med välskött gräsmatta angränsande liten skogsdunge som passar bra för lekande barn. Grusat på framsidan med carport och ett förråd. ca 15 minuter med bil till Kungsbergets skidanläggning. Ca 20 minuter till Ockelbo när det behövs handlas.

Fakta

Utgångspris
850 000 kr
Fast.beteckning:

Jädraås 1:123

Rum

4 st

Sovrum

3 st

Boarea

110 m²

Biarea

60 m²

Tomtarea

897 m²

Byggnadstyp

1½-plansvilla

Byggnadsår

1990

Reg. Fastighetsmäklare

Profil

Jan Bohman

0704566155

jan@ockelbomaklaren.se

Tillträde

Enligt överenskommelse.

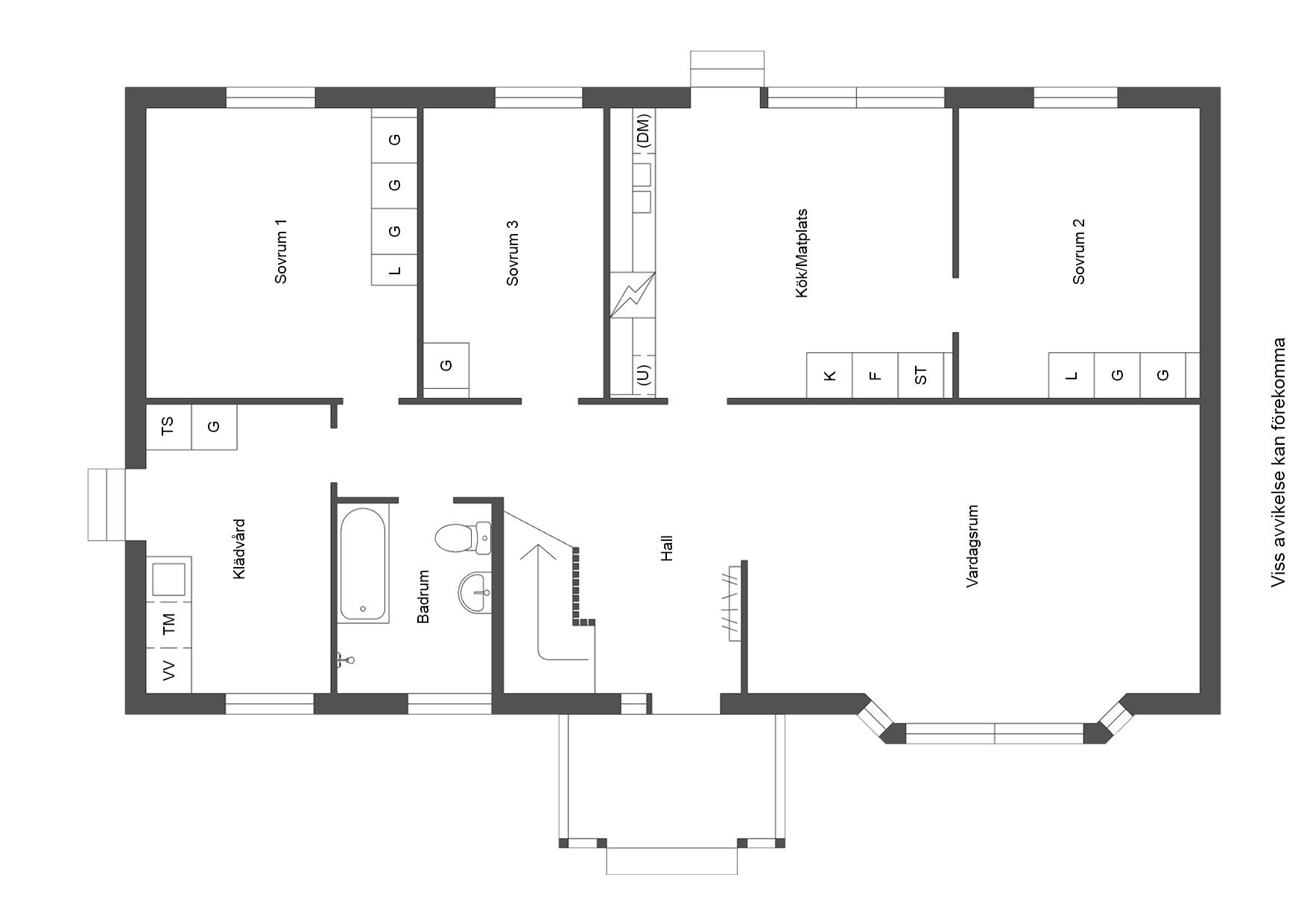
Rum

  • Hall

    Rymlig och möblerbar hall med plastmatta.

  • Vardagsrum

    Med parkettgolv och ett vackert burspråk med 2 fönster.

  • Kök

    Rymligt ljust kök med matplats och plastmatta. Vita skåpluckor samt vitt kakel vid diskbänken. Spis, spishäll, spisfläkt, diskmaskin, kyl och frys. Utgång till altanen.

  • Sovrum 1

    Med plastmatta samt fyra garderober.

  • Sovrum 2

    Med ingång från köket med ljusa tapeter, plastmatta och tre garderober.

  • Sovrum 3

    Ljusa tapeter och plastmatta med en garderob.

  • Badrum

    Med våtrumsmatta och våtrumstapet. Handfat, wc, duschhörna samt badkar.

  • Tvättstuga

    Med våtrumsmatta och våtrumstapet. Utrustad med tvättmaskin, torkskåp och rostfri sköljho. Grovingång från utsidan. Städskåp samt Frånluftsvärmepump från Nibe 2018.

  • Vindsrum

    En trappa går upp från hallen till en vind som hart golv av trä. Detta är mycket praktiskt för en större barnfamilj att utöka boytan med flara sovrum i framtiden.

Tomt

Trädgårdstomt.

Lättskött trädgårdstomt med hörnläge. Fundament är gjutna och förberett för att bygga staket mot gatan. Vackert skogsområde mot baksidan. Äppelträd, syrénhäck och ett pilträd.

Rymlig altan i söderläge mot baksidan med tak samt utgång från köket.

Planbestämmelser

Byggnadsplan (1982-11-04)

Servitut, ga, samfälligheter, etc

Gemensamhetsanläggning: Ockelbo Jädraås GA:1 ändamål: Vägar, Garage och/eller parkering

Bilplats

Grusad framsida på tomten med parkering för ca 3-4 bilar förutom bilplats under tak i carporten.

Bredband

Mobilt bredband. samt egen parabol, Boxer. Fiber finns i gatan och kan anslutas vid önskemål.

Ventilation

Mekanisk frånluft med värmeåtervinning.

Vatten och avlopp

Kommunalt vatten året om. Kommunalt avlopp.

Energideklaration

Utförd

Utförd: 9/5 2025

Klass

D

Elektricitet

Nätbolag

Ellevio

Förbrukning

13 968 kWh/år

Drift per år

Försäkring

4 800 kr

Vatten/avlopp

15 469 kr

Elförbrukning

17 935 kr

Väg/Samfällighetsavgift

1 000 kr

Renhållning

2 588 kr

Summa

41 792 kr

Taxeringsuppgifter

Typkod

220, Småhusenhet, bebyggd.

Totalt

858 000 kr

Byggnad

706 000 kr

Mark

152 000 kr

Skatt/avgift

6 435 kr

Taxeringsår

2024

Värdeår

1990

Pantbrev

Summa

1 034 000 kr

Antal

2 st

Byggnad

Typ

1½-plansvilla

Byggår

1990

Bjälklag

Trä

Utv plåtarbete

Lackerad plåt

Fasad

Trä

Grund

Krypgrund

Grundmur

Betongsten

Stomme

Trä

Uppvärmning

Frånluftsvärmepump

Tak

Betongpannor

Fönster

3 glas isoler

Renoveringar

Frånluftsvärmepumpen är av fabrikat Nibe från år 2018.

Övriga byggnader

Friliggande byggnad med förråd samt carport.


Karta


Planlösning


Bilder